belderbos.nl maakt gebruik van cookies.

We gebruiken cookies om de website naar behoren te laten werken, om functies voor social media te bieden en om onze website te analyseren. Dit gebeurt anoniem. U gaat akkoord met onze cookies als u onze website blijft gebruiken. Op onze website vindt u ook ons privacybeleid.

Laan van Meerdervoort 1133 A
Bohemen en Meer en Bos, Den Haag

Interesse in deze woning?

We geven graag meer informatie of plannen een bezichting. Bel 070 - 368 94 96, mail of gebruik het contactformulier.

Contact opnemen
price € 195.000 k.k.
type Portiekflat
livingSurface 39m²
bedrooms 1
bathrooms 1
rooms 2
auctionDate Per direct

Omschrijving

LAAN VAN MEERDERVOORT 1133A TE DEN HAAG (Bohemen Rechts)
English text below

Algemeen:
Fraai in Bohemen Rechts, tegenover de T-vijver aan rustige ventweg, dus ver verwijderd van de hoofdroute, gelegen beknopt (39m²) 2 kamer kamer top appartement op de 5e woonlaag in het statige gebouw "Meer en Bosch". Gebouwd in 1934 naar architectuur van Co Brandes in de bouwstijl van de Nieuwe Haagse School. Extern in goede staat van onderhoud. Intern te moderniseren naar de woonwensen anno 2026. Uniek voor dit appartement is de aanwezigheid van een eigen dakterras van ca. 18m² op het zuidwesten gesitueerd. Winkels De Savornin Lohmanplein, groen-, sport- en recreatievoorzieningen, openbaar vervoer (Randstadrail lijn 3), scholen (basis, middelbaar en internationaal) alsmede zee, strand en duinen in de directe of nabije omgeving aanwezig. Eeuwigdurende erfpacht met afgekochte canon.

Indeling:
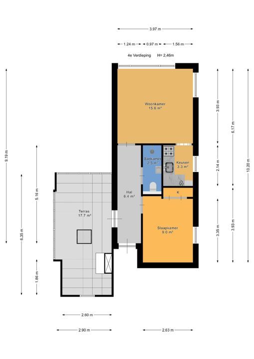
Gesloten entree met brievenbussen en intercom; stijlvol trappenhuis met brede bordessen met twee appartementen per woonlaag; lift naar 4e verdieping; entree/gang met toegang tot 3 bergruimtes van onderliggende appartementen; entree en hal; slaapkamer 335x263 met vaste kast; badkamer 244x100 met douche, toilet en wastafel; woonkamer 397x393 annex beknopte half open keuken 214x156; via de gang toegang tot eigen dakterras ca. 18m² met veel privacy en op zuidwesten gesitueerd.

Overige wetenswaardigheden:
- bouwjaar 1934
- eeuwigdurende erfpacht met afgekochte canon
- lift
- 1/3e aandeel (van de onder splitsing 1/8) in actieve VVE met een maandelijkse bijdrage van € 111,11
- MJOP aanwezig
- nieuwe (2025) brandvertragende deuren en vloeren aangelegd
- aluminium en hardhouten kozijnen alle met dubbel glas
- cv-ketel Remeha Avanta 2010
- energielabel G
- ouderdoms-, materialen- en niet bewoningsclausule zijn van toepassing
- woonoppervlak ca. 39m² (gemeten conform de branche brede meetinstructie)
- plattegronden en meetstaat beschikbaar


AANKOOPPLANNEN??............NEEM UW EIGEN NVM-AANKOOPMAKELAAR MEE!!

ADRESSEN VAN NVM-AANKOOPMAKELAARS VINDT U OP FUNDA.NL


******************************************************

English text
General:
Beautifully situated in 'Bohemen Rechts', opposite the T-shaped pond on a quiet service road, thus well removed from the main road, compact (39m²) 2-room top-of-the-line apartment on the 5th floor of the stately "Meer en Bosch" building. Built in 1934 to the architecture of Co Brandes in the New Hague School style, the exterior is in good condition. The interior can be modernized to meet the living requirements of 2026. Unique to this apartment is the presence of a private southwest-facing roof terrace of approximately 18m². Shops at De Savornin Lohmanplein, green spaces, sports and recreational facilities, public transport (RandstadRail line 3), schools (primary, secondary and international), as well as the sea, beach and dunes, are all nearby. Perpetual leasehold with prepaid ground rent.

Layout:
Secure entrance with mailboxes and intercom; stylish staircase with wide landings, with two apartments at each floor; elevator to the 4th floor; entrance/hallway with access to three storage rooms in the apartments below; entrance and hallway; bedroom with built-in wardrobe; bathroom with shower, toilet, and sink; living room and a compact semi-open kitchen; access by the hallway to a private roof terrace of approximately with plenty of privacy and southwest-facing location.

Other information:
- Year of construction 1934
- Perpetual leasehold with purchased ground rent
- Elevator
- 1/3 share (of the 1/8 share under the division) in an active homeowners' association with a monthly contribution of € 111,11
- Long-term maintenance plan multi-year maintenance plan available
- New (2025) fire-resistant doors and floors installed
- Aluminum and hardwood window frames, all with double glazing
- Remeha Avanta 2010 central heating boiler
- Energy label G
- Age, materials, and non-occupancy clauses apply
- Living area approx. 39m² (measured in accordance with industry-wide measurement instructions)
- Floor plans and bill of quantities available

Kenmerken

Aanvaarding

Prijs
€ 195.000 k.k.
Status
Verkocht onder voorbehoud
Oplevering
Per direct

Bouw

Soort appartement
Portiekflat, Appartement
Woonlaag
5
Soort bouw
Bestaande bouw
Bouwjaar
1935
Onderhoud binnen
Redelijk
Onderhoud buiten
Goed

Oppervlakten en inhoud

Woonoppervlakte
39m²
Inhoud
133m³

Indeling

Aantal kamers
2
Aantal slaapkamers
1
Aantal badkamers
1
Aantal verdiepingen
1
Voorzieningen
Lift, Natuurlijke ventilatie

Energie

Energielabel
G
Isolatie
Dubbel glas
Warm water
C.V.-ketel
Verwarming
C.V.-ketel
Ketel
Remeha Avanta (2010, Combi-ketel, Eigendom)

Buitenruimte

Ligging
Aan rustige weg, In woonwijk

Garage

Locatie

[ { "address": "Laan van Meerdervoort 1133", "zipCode": "2555 BA", "city": "Den Haag", "lat": 52.0666946, "lng": 4.2422769 } ]

Bekijk het verloop van de zon

Uw browser ondersteunt geen WebGL

Plattegronden

Meer weten over deze woning?

Laat uw gegevens achter en wij nemen zo snel mogelijk contact met u op.

Uw bericht is naar ons verzonden. Wij nemen zo snel mogelijk contact met ons op.

Sorry, we kunnen helaas niet met zekerheid vaststellen of je een mens of een geautomatiseerde bot/spammer bent. Hierdoor kunnen we het formulier dat je hebt ingevuld niet verzenden. Probeer het opnieuw of neem direct contact op met de makelaar via e-mail.

Er is iets mis gegaan met het versturen van het formulier.
Controleer of u alle velden (goed) heeft ingevoerd en probeer het nog een keer.

recaptcha
reCAPTCHA
PrivacyTerms